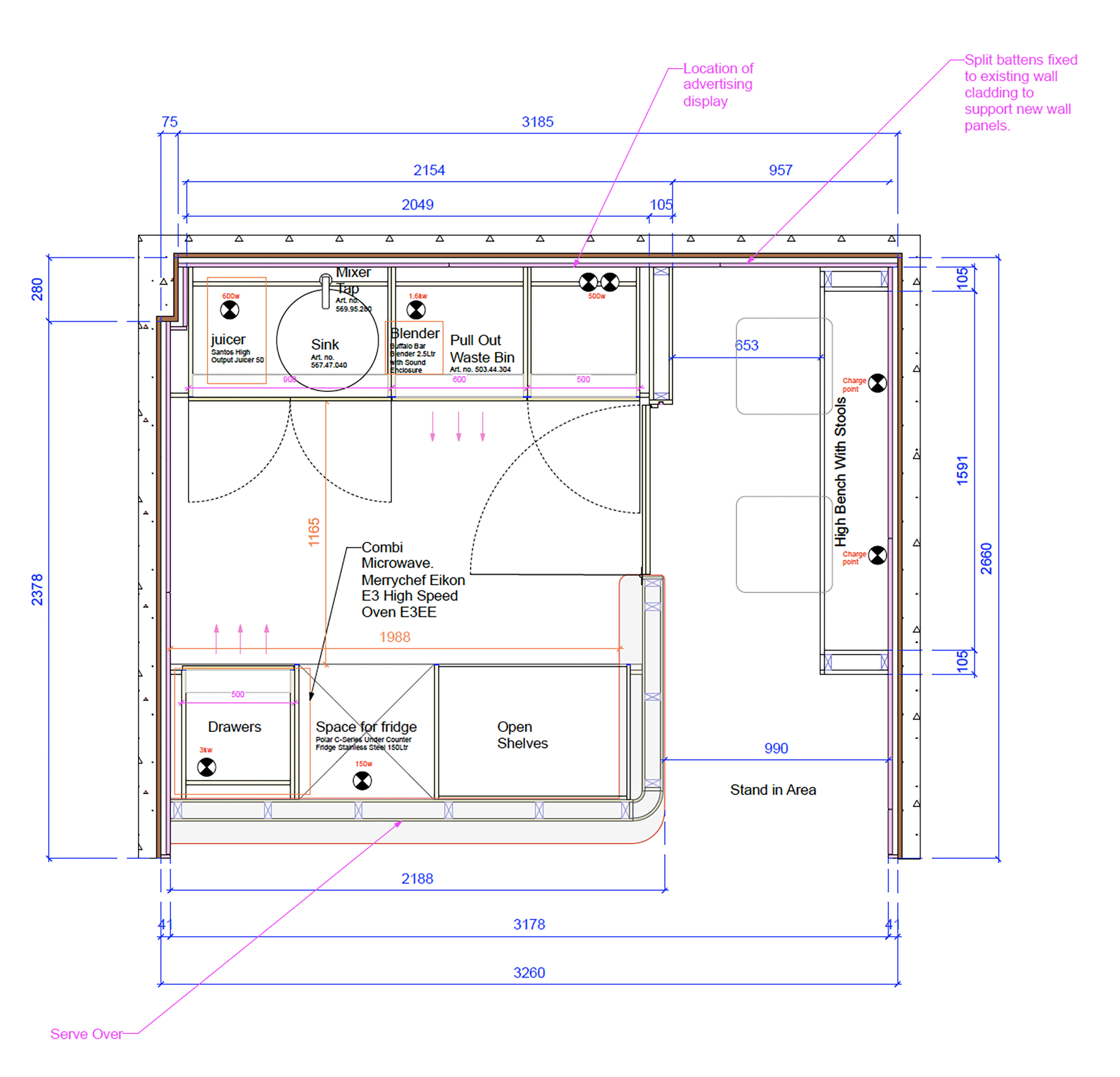
Technical Design - Workshop Ready Drawings

Concept design is often rendered pointless without the ability to turn said concept into reality. That’s why take time to understand the feasibility of our designs and then we go ahead and produce practical design details that work.

Previous
Previous

Rossi's

Next
Next

Corporate Illustrations